Rif: 1670
CARINI
PALERMO
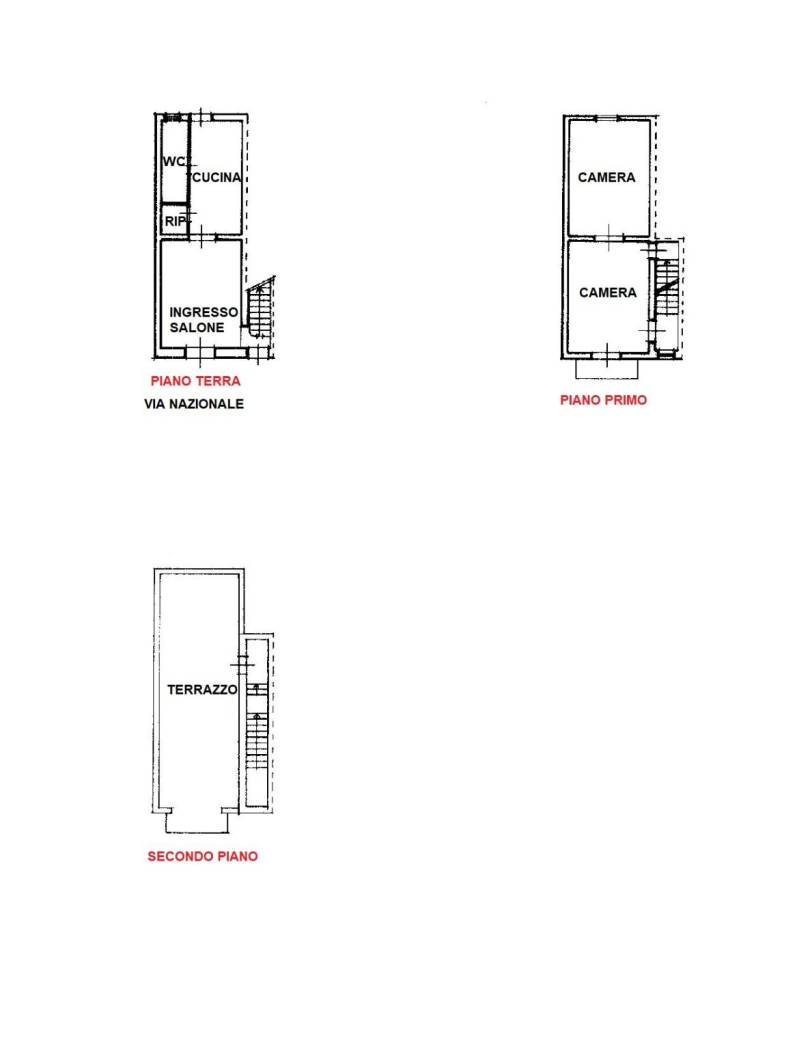
Rif. 1670 - Immobiliare Conigliaro propone in vendita a Villagrazia di Carini sulla via nazionale casa indipendente su due piani, una casa indipendente da ristrutturare che offre un'opportunità unica di personalizzare la tua dimora ideale. Con una superficie commerciale di circa 179 mq, l'immobile è diviso in due abitazioni, perfetto per chi cerca spazio e versatilità. Al piano terra, un ampio ingresso ti accoglie, conducendoti a una cucina funzionale, un pratico ripostiglio, un servizio e un terrazzo dove rilassarti all'aria aperta.
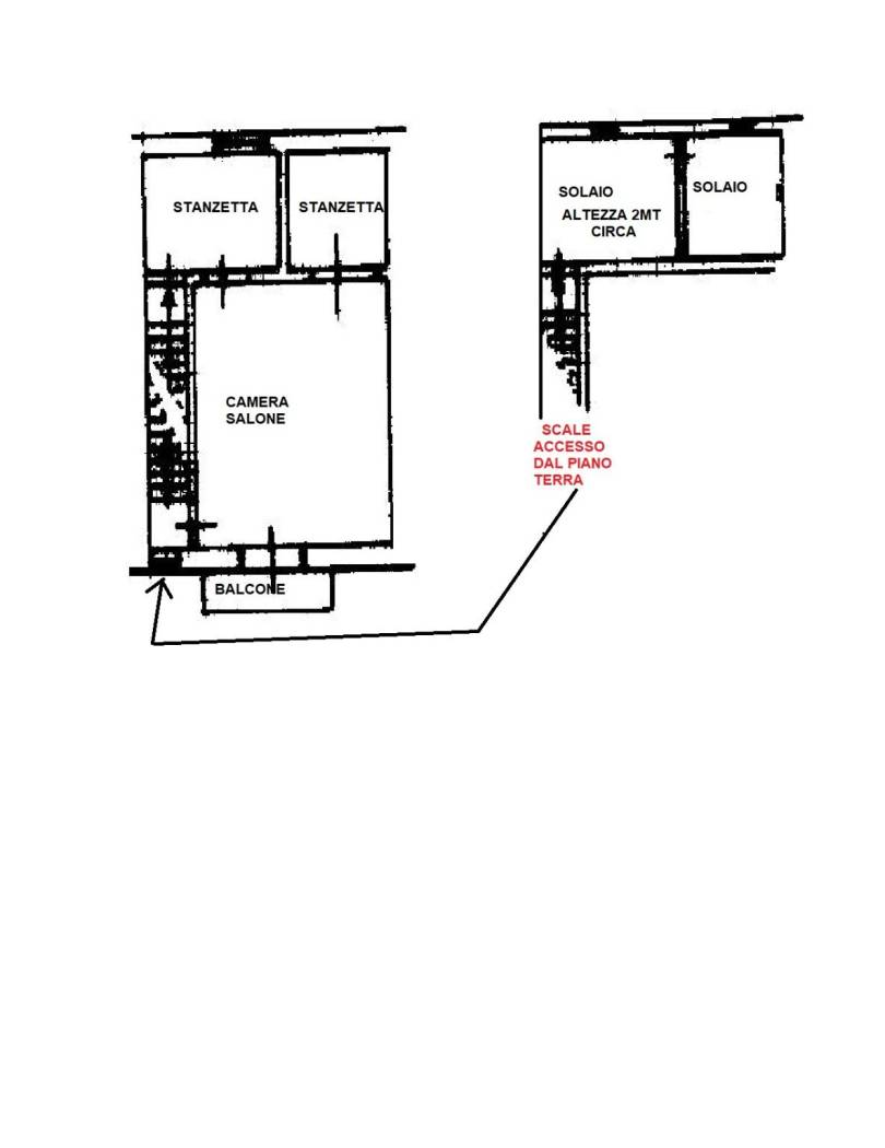
Al primo piano, troverai due ampie camere, di cui una con balcone, ideali per creare ambienti accoglienti e luminosi. Il secondo piano offre un ampio terrazzo e un balcone, perfetti per godere di momenti di relax con vista. L'accesso alle scale dell'immobile 1 conduce alla seconda abitazione, che include un'ampia camera, due camerette e due solai al secondo piano.
Completa la proprietà un giardinetto di pertinenza di circa 200 mq, un'oasi verde privata dove trascorrere piacevoli giornate all'aperto. Costruito nel 1960, l'immobile è dotato di ascensore e accesso adattato a persone con mobilità ridotta. Non perdere l'occasione di trasformare questa casa nella tua residenza dei sogni! Per ulteriori informazioni, contatta il numero 0918675239 o wsp3286434602 Classe energetica APE "G".
Al primo piano, troverai due ampie camere, di cui una con balcone, ideali per creare ambienti accoglienti e luminosi. Il secondo piano offre un ampio terrazzo e un balcone, perfetti per godere di momenti di relax con vista. L'accesso alle scale dell'immobile 1 conduce alla seconda abitazione, che include un'ampia camera, due camerette e due solai al secondo piano.
Completa la proprietà un giardinetto di pertinenza di circa 200 mq, un'oasi verde privata dove trascorrere piacevoli giornate all'aperto. Costruito nel 1960, l'immobile è dotato di ascensore e accesso adattato a persone con mobilità ridotta. Non perdere l'occasione di trasformare questa casa nella tua residenza dei sogni! Per ulteriori informazioni, contatta il numero 0918675239 o wsp3286434602 Classe energetica APE "G".
Consistenze
| Descrizione | Superficie | Sup. comm. |
|---|---|---|
| Principali | ||
| Immobile - piano terra | 179 Mq | 179 Mqc |
| Totale | 179 Mqc | |






